Se la tua famiglia ha bisogno di più spazio senza rinunciare all’indipendenza e all’innovazione, questo esclusivo quadrilocale di testa al piano primo è la soluzione ideale. Inserita in un prestigioso contesto residenziale a Castegnato, questa abitazione di nuova costruzione unisce le ampie metrature di una volta con le più avanzate tecnologie del futuro.
Scegliendo l’Impresa Franzoni, acquisti in totale sicurezza e trasparenza: vendita diretta dal costruttore, un unico referente per ogni tua esigenza e l’enorme vantaggio di non avere alcuna spesa di intermediazione.
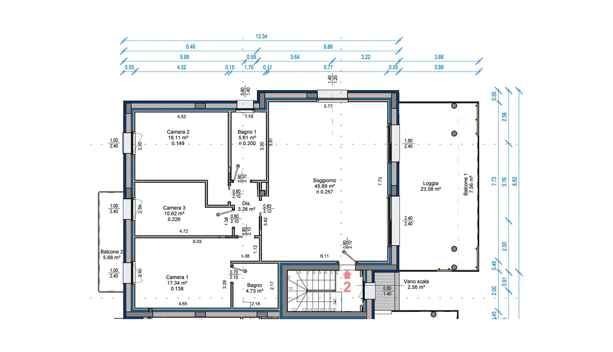
Libero su Tre Lati: Luminosità, Privacy e una Grande Loggia
La posizione “di testa” di questo appartamento è un valore aggiunto inestimabile: essendo libero su tre lati, garantisce un’eccellente esposizione solare, regalando ad ogni ambiente una splendida luce naturale per tutto l’arco della giornata.
L’appartamento, dotato di ingresso indipendente, è stato progettato per massimizzare la vivibilità:
- Una grande e luminosa zona giorno.
- Tre camere da letto, perfette per accogliere tutta la famiglia o ricavare uno studio privato.
- Due bagni finestrati dal design moderno.
- Una splendida e profonda loggia vivibile, un vero e proprio salotto all’aperto dove poter cenare d’estate o rilassarsi in totale privacy.
- Al piano interrato, collegato comodamente, l’immobile si completa con un indispensabile garage doppio.
Vivere nel Futuro: Casa Gas Free in Classe Energetica A4
Dimentica le vecchie bollette e preparati a vivere nel massimo del comfort. Questo quadrilocale è un immobile 100% “Gas Free“, certificato in Classe Energetica A4 e dotato di impiantistica di ultimissima generazione:
- Riscaldamento e raffrescamento a pavimento con sistema di deumidificazione.
- Ventilazione Meccanica Controllata (VMC), per il ricambio costante e la purificazione dell’aria interna.
- Impianto fotovoltaico dedicato e predisposizione per la domotica.
Avrai inoltre la possibilità di personalizzare gli spazi interni scegliendo tra un ricco capitolato di finiture di pregio.

