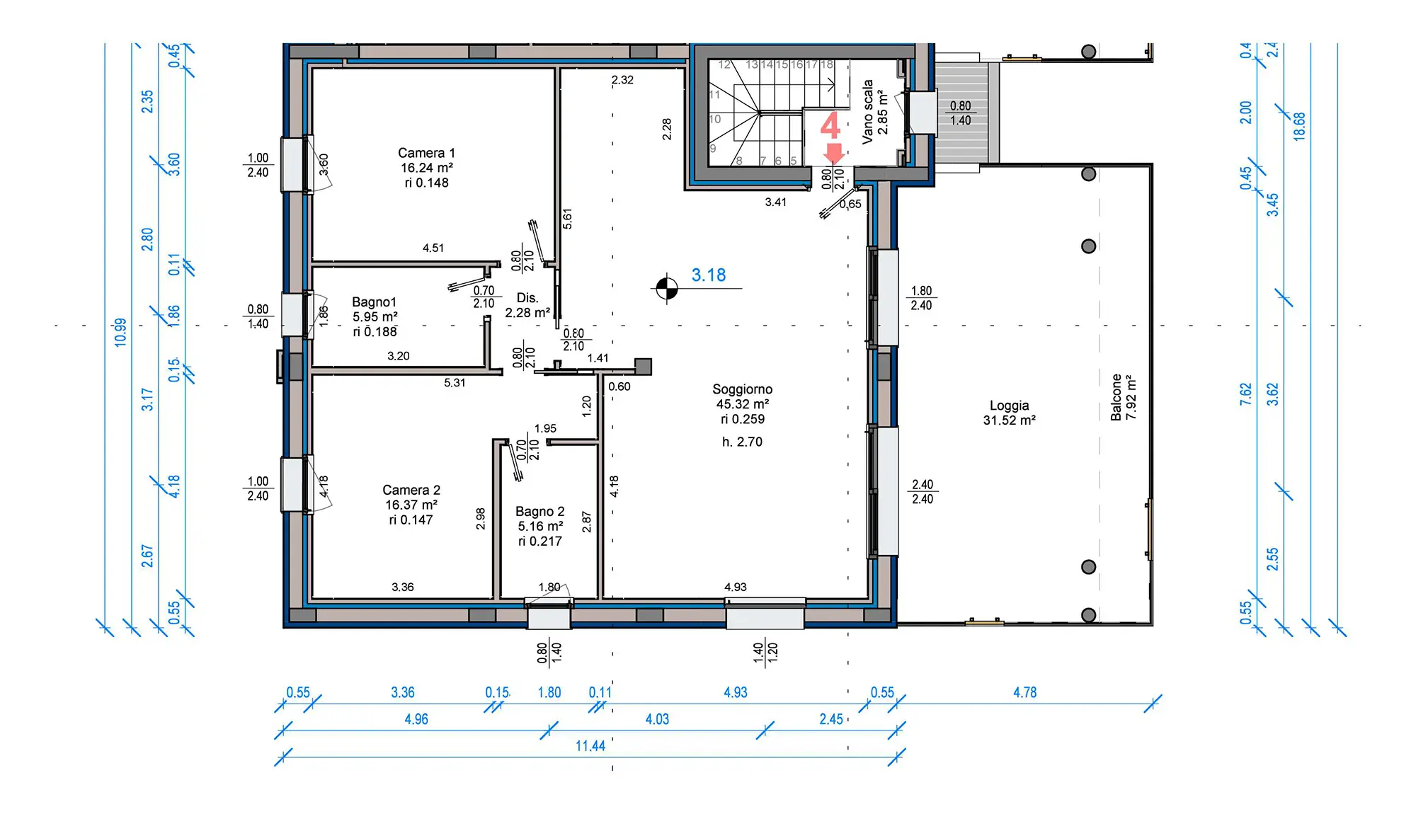
Cerchi un appartamento moderno, efficiente e lontano dai rumori? Questo splendido trilocale di testa al piano primo è la soluzione perfetta per chi desidera unire l’indipendenza di una casa singola alla praticità di un contesto residenziale esclusivo a Castegnato.
Acquistando questa nuova costruzione tratterai direttamente con Franzoni Costruzioni: ti garantiamo un affiancamento costante, una personalizzazione su misura e il grande risparmio di una vendita diretta senza spese di agenzia.
Libero su Tre Lati: Privacy Assoluta e una Splendida Loggia
La vera unicità di questo trilocale è la sua posizione angolare. Essendo libero su tre lati, l’appartamento regala una tranquillità impareggiabile e un’illuminazione naturale ottimale in ogni stanza.
Dotato di un esclusivo ingresso indipendente, l’immobile si apre su una zona giorno ampia e ariosa, progettata per integrarsi perfettamente con l’esterno. Il fiore all’occhiello è infatti la grande loggia coperta: un vero e proprio salotto all’aria aperta, ideale per pranzare fuori d’estate o godersi momenti di relax nella massima riservatezza.
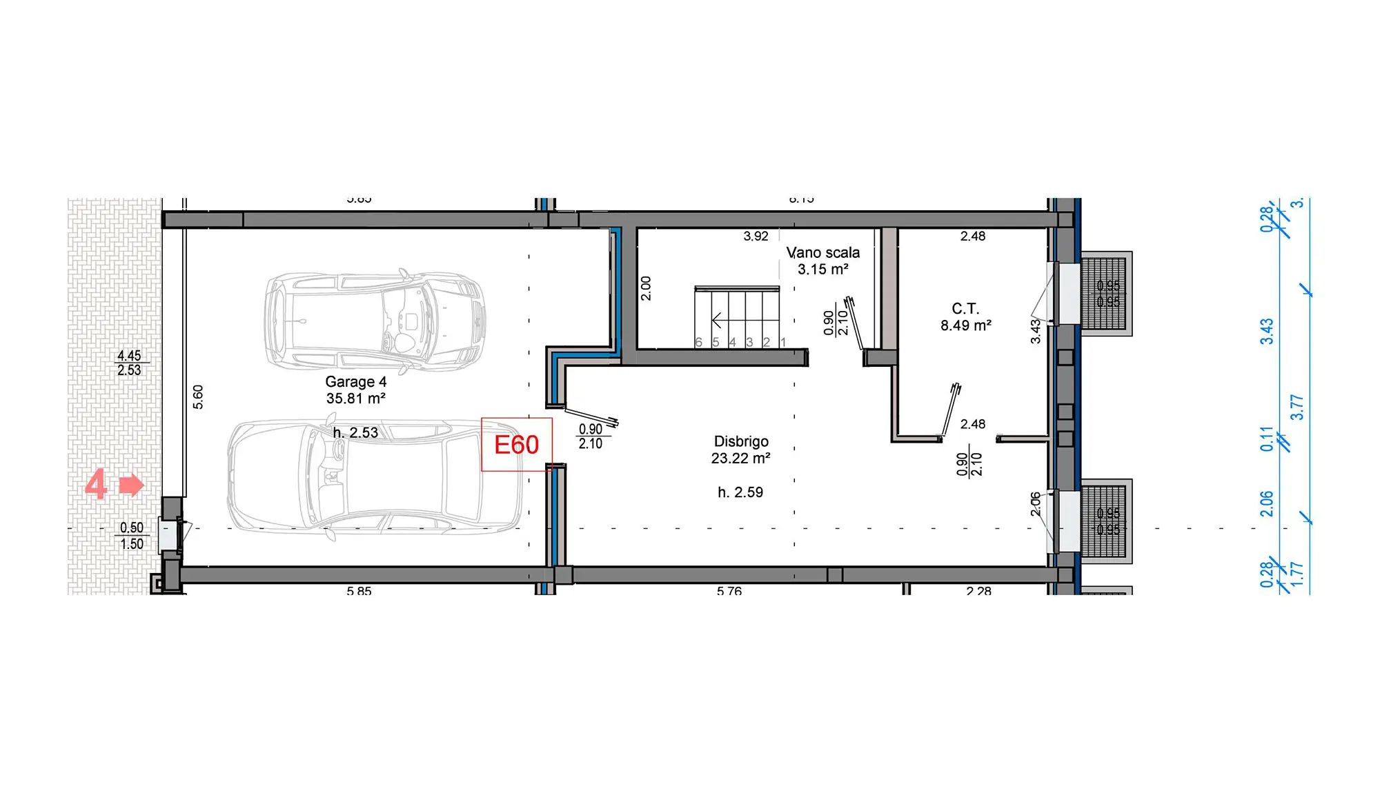
La zona notte, ben separata, offre spazi accoglienti e funzionali, affiancati da servizi dal design contemporaneo. Al piano interrato, la proprietà si completa con un comodo e spazioso garage doppio.
Efficienza Senza Compromessi: Casa Gas Free e Domotica
Come ogni realizzazione firmata Franzoni, questo trilocale rappresenta l’eccellenza dell’edilizia moderna. È un’abitazione 100% “Gas Free” certificata in Classe Energetica A4, progettata per abbattere drasticamente i costi di gestione garantendoti un benessere abitativo superiore.
Le dotazioni tecnologiche di serie includono:
- Riscaldamento e raffrescamento a pavimento con sistema di deumidificazione.
- Ventilazione Meccanica Controllata (VMC), per un ricambio d’aria continuo e salubre.
- Impianto fotovoltaico dedicato, per un reale risparmio energetico.
- Predisposizione per la gestione degli ambienti tramite domotica avanzata.
Non perdere l’opportunità di vivere in una casa moderna chiavi in mano costruita intorno a te.


