Sei alla ricerca di una casa nuova, luminosa e lontana dalla confusione dei grandi complessi? Scopri questo esclusivo trilocale ad angolo al piano primo, situato in una prestigiosa zona residenziale di Castegnato. Una soluzione abitativa moderna che unisce i vantaggi di una posizione privilegiata alle più avanzate tecnologie costruttive.
Scegliendo Franzoni Costruzioni, avrai il privilegio di acquistare la tua nuova casa tramite vendita diretta dal costruttore: un dialogo trasparente, la possibilità di personalizzare gli spazi e la garanzia di nessuna spesa di agenzia immobiliare.
Posizione Angolare: Doppia Esposizione e una Loggia da Vivere
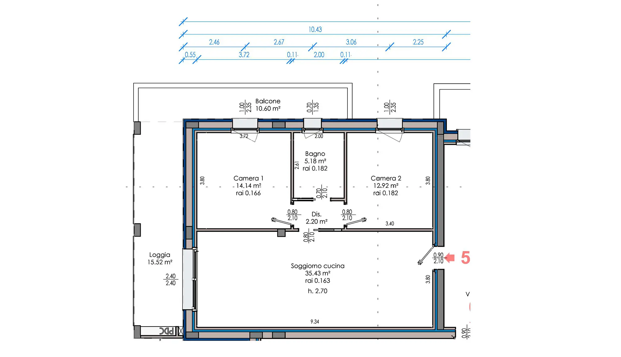
Il vero punto di forza di questo immobile è la sua conformazione “ad angolo”. Questa caratteristica regala all’appartamento una doppia esposizione solare, garantendo ambienti inondati di luce naturale e un eccellente ricircolo dell’aria, oltre a una maggiore privacy grazie al minor numero di pareti confinanti.
Dotato dell’immancabile ingresso indipendente, il trilocale si apre su una zona giorno moderna e ariosa, progettata per estendersi naturalmente verso l’esterno. Troverai infatti una splendida e profonda loggia coperta, uno spazio intimo e riservato da arredare come salotto estivo o zona pranzo all’aperto. La zona notte, ben disimpegnata, e i doppi servizi completano un layout studiato per il massimo comfort quotidiano. Al piano interrato ti aspetta inoltre un capiente garage doppio.
Efficienza e Benessere: Casa Gas Free in Classe Energetica A4
Come da tradizione Franzoni, questo trilocale ad angolo non scende a compromessi sull’efficienza. È un’abitazione 100% “Gas Free” certificata in Classe Energetica A4, concepita per azzerare gli sprechi e offrirti un benessere climatico superiore in ogni stagione.
L’immobile ti verrà consegnato con un impiantistica d’eccellenza, tra cui:
- Riscaldamento e raffrescamento a pavimento abbinati a un sistema di deumidificazione.
- Ventilazione Meccanica Controllata (VMC), per respirare aria sempre pura e filtrata.
- Impianto fotovoltaico dedicato, per abbattere sensibilmente i costi in bolletta.
- Isolamenti termo-acustici di altissima fascia e predisposizione per la domotica smart.
Un’occasione imperdibile per vivere in una casa moderna chiavi in mano.


